Eladó Lakás (téglaépítésű) Budapest IV. kerület - Attila utca

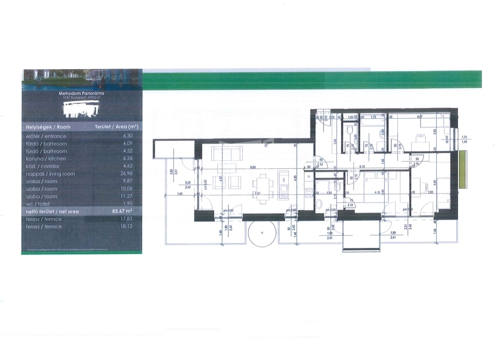
86 m2Alapterület 4 Szoba
186 500 000 Ft Ár
393910Azonosító
További adatok

Panoráma Kilátás

Újszerű Állapot

Tégla Szerkezet

35 m2 Erkély/terasz

Házközponti egyedi mérővel Fűtés

Összkomfort Komfort

Garázs/beálló vásárolható Parkolás

Emelet 13

Van Lift

Tömegközlekedés

Amerikai konyhás

Nincs Kertkapcsolat

2020 Építés éve

Közös költség 59 000 Ft

Délnyugati Tájolás

Hitelkalkuláció – a részletekért kattintson valamelyik bank logójára!

✨ Exkluzív panorámás otthon hatalmas terasszal – Metrodom lakópark, Újpest ✨

Újpest egyik legmodernebb lakóparkjában, a 2020-ban épült Metrodom lakóparkban kínálunk megvételre egy 86 m²-es, nappali + 3 hálószobás, amerikai konyhás, újszerű lakást, a 13. emeleten, lenyűgöző körpanorámával.

Ami igazán különlegessé teszi:

35 m²-es, tágas terasz, amely a város fölé emel

Körpanorámás kilátás – ritka adottság

Magas emeleti elhelyezkedés → maximális fény, térérzet és nyugalom

Lakás jellemzői:

86 m² | nappali + 3 külön nyíló hálószoba

Tágas, modern amerikai konyhás nappali

Újszerű, megkímélt állapot

Házközponti fűtés

⚙️ Modern komfort:

Okosotthon rendszer – kényelmes, korszerű vezérlés

❄️ Klíma a kellemes hőmérsékletért

Minden nyílászárón redőny és szúnyogháló

Épület:

2020-as építés, modern kivitelezés

17 emeletes, liftes társasház

Igényes, rendezett környezet

Parkolás:

Teremgarázs hely tartozik hozzá

Ára: 8.000.000 Ft (opcionálisan megvásárolandó)

Elhelyezkedés:

Iskola, óvoda a közelben

Bevásárlási lehetőségek pár percen belül

Kiváló közlekedés

Ideális választás azoknak, akik modern, prémium életérzést keresnek – nagy terasszal, panorámával és okos megoldásokkal.

További információért és megtekintésért várom hívását a hét bármely napján!
Bereznai Beáta

Bereznai Beáta

Hívjon bizalommal

+36-70-409-Mutasd!

További hirdetéseim

Ingatlaniroda
GDN Ingatlanhálózat - ViBee

Küldjön üzenetet

Visszahívást kérek

Hasonló ingatlanok