Eladó Családi ház Budapest XIV. kerület - Istvánmező csendes utcájában!!

400 m2Alapterület 8 Szoba
499 000 000 Ft Ár
395079Azonosító
További adatok

265 m2 Telek

Kertre néző Kilátás

Jó állapotú Állapot

Tégla Szerkezet

5 m2 Erkély/terasz

Gáz (cirkó) Fűtés

Dupla komfort Komfort

Utcán, közterületen Parkolás

Kiváló Tömegközlekedés

Nem Amerikai konyhás

Van Kertkapcsolat

1935 Építés éve

Délkeleti Tájolás

Hitelkalkuláció – a részletekért kattintson valamelyik bank logójára!

RITKASÁG!! KIVÉTELES ADOTTSÁGOKKAL, EGYEDI IGÉNYEKRE SZABHATÓ CSALÁDI VILLA ZUGLÓ EGYIK LEGKERESETTEBB RÉSZÉN!!

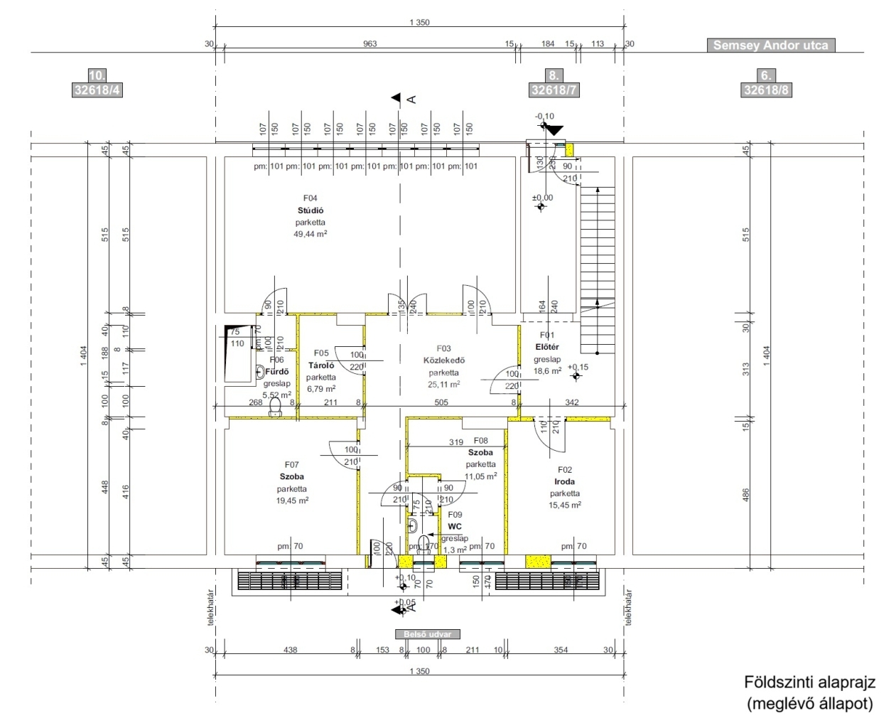
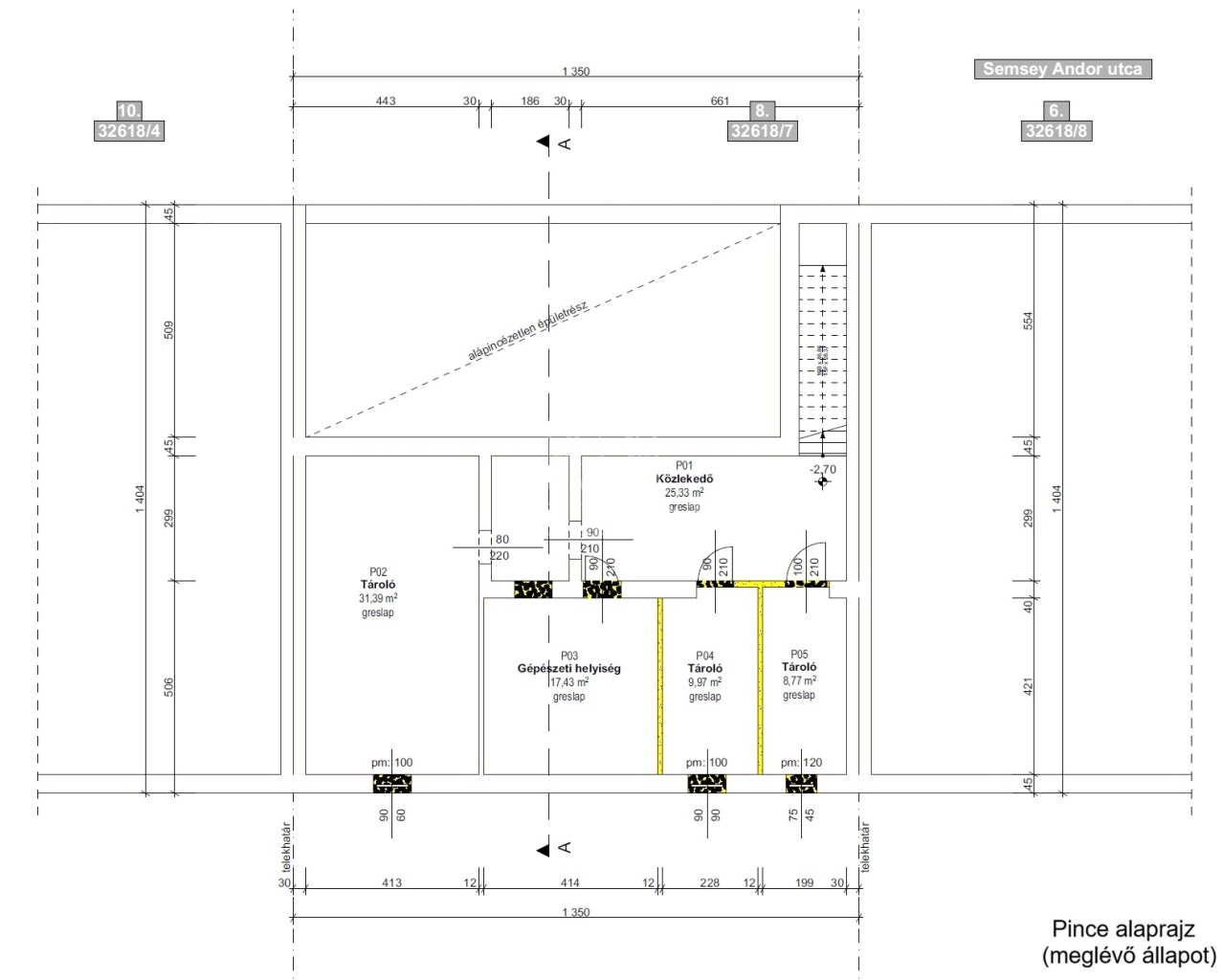
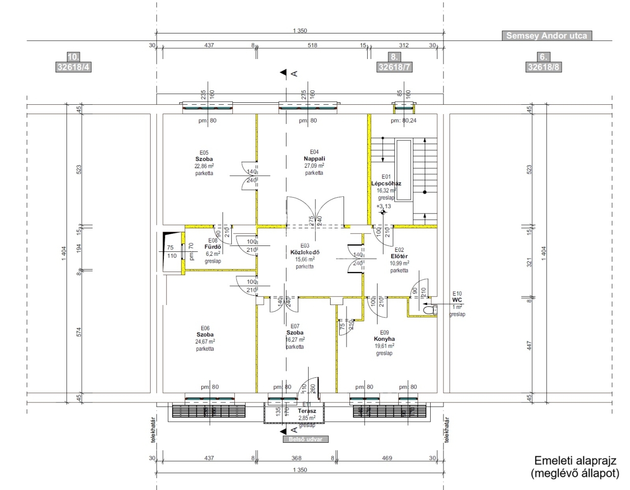
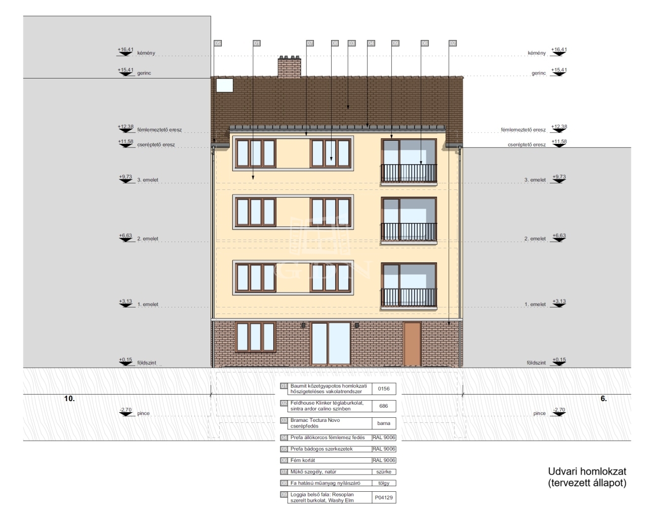
XIV. kerületben, Istvánmező városrészben, kiváló közlekedés és ellátottság mellett, Stefánia útból nyíló csendes, hangulatos mellékutcában, kiváló adottságokkal rendelkező, szintráépítéssel több lakás kialakítására alkalmas, 265 nm-es telekterületű, 1930-as években, Bauhaus stílusban épült, 100 nm-es alapterületű, 390 nm-es lakóterületű, 3 szintes, (pince 90 nm, földszint 150 nm, emelet 150nm) elegáns megjelenésű, statikailag és szerkezetileg egyaránt kiváló állapotú, 9 szobás, dupla fürdőszobás, napos-világos D-K-i fekvésű, korszerű kombinált gázkazán fűtésű, riasztórendszerrel felszerelt, tehermentes azonnal birtokba vehető családi villaépület eladó.

Az épület kiváló szerkezeti adottságának köszönhetően könnyedén alakítható, szintráépítéssel 4 db nagyobb, vagy akár 7 db kisebb lakóegység kialakítható! (teljes tervdokumentáció rendelkezésre áll)

Az ingatlan kiváló elhelyezkedésének köszönhetően, ideális választás lehet továbbá ingatlanfejlesztéssel foglalkozó beruházóknak, irodai tevékenységgel foglalkozó cégeknek, tervező irodáknak, bemutató-műteremnek, magánorvosi rendelőknek, akik egy jól megközelíthető, igényes környezetben keresnek professzionális munkateret.

A környék biztonságos infrastruktúrája és közlekedése kitűnően ellátott.

Az M2-es metró Stadionok megállója, 1-es villamos, és a 7-es busz Thököly úti megállói gyalogosan 5 -7 perc alatt elérhetők!!

További részletes tájékoztatásért várom megtisztelő hívását.
(hétvégén is)
EA
Bereznai Beáta

Bereznai Beáta

Hívjon bizalommal

+36-70-409-Mutasd!

További hirdetéseim

Ingatlaniroda
GDN Ingatlanhálózat - ViBee

Küldjön üzenetet

Visszahívást kérek

Hasonló ingatlanok