Eladó Ikerház Budapest XXIII. kerület - Orbánhegyen

104 m2Alapterület 5 Szoba
115 000 000 Ft Ár
394796Azonosító
További adatok

382 m2 Telek

Kertre néző Kilátás

Jó állapotú Állapot

Tégla Szerkezet

9 m2 Erkély/terasz

Gáz (cirkó) Fűtés

Összkomfort Komfort

Saját beálló Parkolás

Tömegközlekedés

Nem Amerikai konyhás

Van Kertkapcsolat

2009 Építés éve

Hitelkalkuláció – a részletekért kattintson valamelyik bank logójára!

Eladásra kínálunk egy jó állapotú ikerházat Budapest kertvárosi részén, Orbánhegyen.

Az ingatlan 104 négyzetméteres, 5 különálló szobával rendelkezik, ideális választás nagyobb családok számára.

A kertre néző kilátás minden évszakban gyönyörű, a 382 négyzetméteres kert pedig bőven teret ad kikapcsolódásra és szabadidős tevékenységekre.

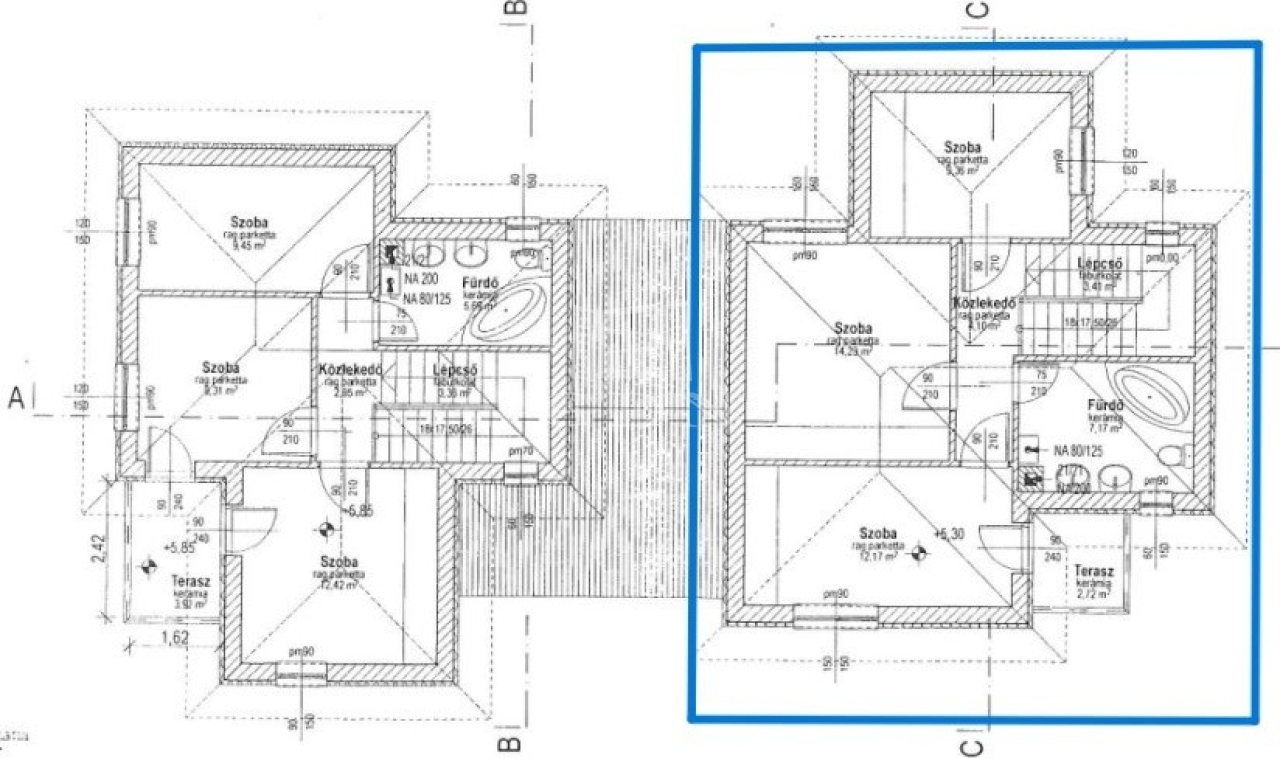
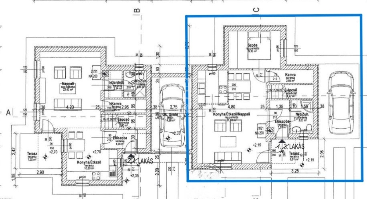
INGATLAN BEOSZTÁSA:

Földszint:
- előtér 3,23 m2,
- nappali + étkező 31,03 m2,
- konyha (szoba) 9,36 m2,
- fürdő + wc 3,63 m2,
- kamra 2,85 m2,
- terasz 6,81 m2.

Emelet:
- szoba 9,36 m2,
- szoba 14,23 m2,
- szoba 12,17 m2,
- fürdő + wc 7,17 m2,
- közlekedő 4,1 m2,
- terasz 2,72 m2.

FELSZERELTSÉG:
- riasztó,
- fűtést gázkazán biztosítja,
- földszinten padlófűtés,
- hűtő-fűtő klíma,
- minőségi fa nyílászárók,
- elektromos kapunak kiállás rendelkezésre áll,
- földszinti teraszon kitekerős napernyő,
- gépkocsi beálló.

KÖZLEKEDÉS + környezet:
H6-os HÉV által Budapest Közvágóhíd 20 perc alatt elérhető, autóval pár perc az M0-ás autópálya. Buszok: 655-ös Volán busz (Népliget vá.), a 66-os és a 66E BKK járat (Határ út vá.). A közelben LIDL és Aldi nyújt bevásárlási lehetőséget. Iskola egy megálló távolságra.
Az ikerház kiválóan illeszkedik a környező kertvárosias hangulathoz, ideális otthona lehet a nyugalomra vágyóknak.

Befektetésnek is alkalmas, a környéken 450.000-600.000 Ft/hó + rezsi áron vannak hasonló kiadó ingatlanok, ami évente 7.000.000,- Ft bevételt is jelenthet.

Amivel segítjük az Ön ingatlanvásárlását:
- ingyenes hitelügyintézés,
- jogi háttér,
- földhivatali ügyintézés,
- energetikai tanúsítvány.

Irodánk 30 éves szakmai tapasztalattal áll ügyfelei rendelkezésére!
Várom szíves megkeresését!

Ne hagyja ki ezt a remek lehetőséget, tekintse meg ezt a csodálatos ingatlant!
Bereznai Beáta

Bereznai Beáta

Hívjon bizalommal

+36-70-409-Mutasd!

További hirdetéseim

Ingatlaniroda
GDN Ingatlanhálózat - ViBee

Küldjön üzenetet

Visszahívást kérek

Hasonló ingatlanok