Eladó Ikerház Kóka - József Attila utca

101 m2Alapterület 4 Szoba
61 900 000 Ft Ár
395006Azonosító
További adatok

934 m2 Telek

Kertre néző Kilátás

Új Állapot

Tégla Szerkezet

14 m2 Erkély/terasz

Hőszivattyú Fűtés

Összkomfort Komfort

Saját garázs Parkolás

Tömegközlekedés

Amerikai konyhás

Van Kertkapcsolat

2026 Építés éve

Délnyugati Tájolás

Hitelkalkuláció – a részletekért kattintson valamelyik bank logójára!

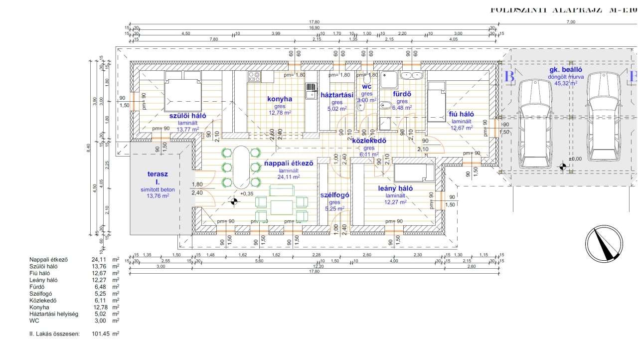
Kókán a József Attila utca 31. szám alatt, 1406 m2-es telkeken, újonnan épülő nettó 101,45 m2 nettó hasznos lakótérrel rendelkező, kulcsrakész ikerházfelek eladóak

Az ingatlanok csak a fedett gépkocsibeállóval érintkeznek.
Az utcafronti ház kizárólagos használatú telekrésze 472 m2. A hátsó háznak 934 m2-es a kizárólagos használatú telekrésze.

Az ingatlanok 30-as Nútféderes téglából épülnek, fa födémmel.
A tető héjazata betoncserép lesz, a homlokzatok 15cm EPS, a padló 10cm lépésálló, a födém 30cm ásványgyapot szigeteléssel lesz ellátva.

A külső nyílászárók 6 légkamrás háromrétegű üveggel szerelt műanyag thermók lesznek.

A fűtést hőszivattyús rendszer fogja ellátni, padlófűtéssel.


Műszaki tartalom:

-Csempe, járólap 3000 ft/m²
-Meleg burkolat 3000 Ft/m²
-Fürdőkád: 40.000.- Ft
-Beltéri ajtók 32.000.- Ft. /db
-Csaptelepek: 15.000.- Ft. /db

Magasabb árú választás is lehetséges a különbség finanszírozásával.

Elektromos kiépítés:
-Konnektorok szobákban: 3 db
-Konnektorok nappaliban 4db + internet és kábeltv kiállás
-Konnektorok konyhában: 6db
-Világítás helyiségenként 1-1 db
-Kábeltévé: Előkészítés


-Kapumozgató elektronika: előkészítés
-Riasztó: előkészítés


Az utcafronti kerítés színezett zsalukővel, fa lécezéssel készül.

A kivitelező korábban épített ingatlanjait komoly érdeklődés esetén szívesen megmutatjuk referenciaként.

INGYENES hitel tanácsadás, Otthon Start, CSOK Plusz ügyintézés!
BANKFÜGGETLEN hitelcentrumunk az összes elérhető bank és hitelintézet ajánlatát versenyezteti az Ön kedvéért, ráadásul DÍJMENTESEN.

- Egyedi, bankfiókban nem elérhető kamat- és díjkedvezmények
- Hitelképesség vizsgálat
- Idő, energia és pénz megtakarítás
- Teljes hivatali ügyintézés

Amennyiben hirdetésem felkeltette az érdeklődését vagy egyéb információra van szüksége hívjon bizalommal!
Bereznai Beáta

Bereznai Beáta

Hívjon bizalommal

+36-70-409-Mutasd!

További hirdetéseim

Ingatlaniroda
GDN Ingatlanhálózat - ViBee

Küldjön üzenetet

Visszahívást kérek

Hasonló ingatlanok