Eladó Családi ház Vác - Belváros

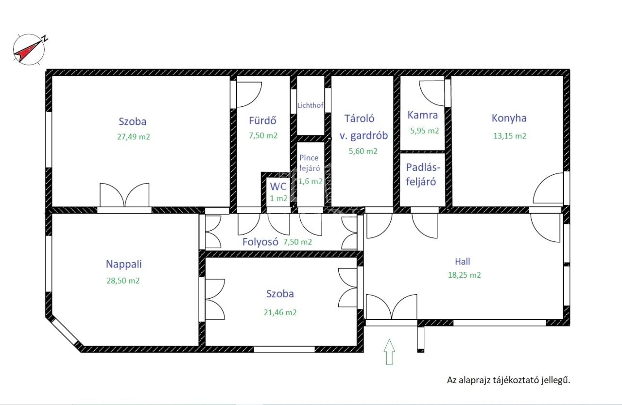
138 m2Alapterület 3 + 1 Szoba
91 000 000 Ft Ár
373686Azonosító
További adatok

314 m2 Telek

Utcai Kilátás

Felújítandó Állapot

Tégla Szerkezet

Gáz (konvektor) Fűtés

Komfort Komfort

Saját garázs Parkolás

Tömegközlekedés

Nem Amerikai konyhás

Van Kertkapcsolat

1920 Építés éve

Déli Tájolás

Hitelkalkuláció – a részletekért kattintson valamelyik bank logójára!

STÍLUSOS, NAGYPOLGÁRI CSALÁDI HÁZ VÁC BELVÁROSÁBAN ELADÓ!

Eladó Vác belvárosában egy nagypolgári stílusú ház, amely az 1920-as években épült, a korszakra jellemző minőségi alapanyagokkal és elegáns részletekkel.

Az ingatlan 138 m²-es, téglaépítésű, fa födémes, és eredeti állapotában várja új tulajdonosát, így kiváló lehetőséget kínál egy igényes felújításra.
A ház 3,5 szobás, tágas, egybenyitható vagy igény szerint külön bejáratú helyiségekkel és impozáns nagy belmagassággal rendelkezik. Az épület belső elrendezése a nagypolgári stílus sajátosságait tükrözi, nagy ablakokkal és tágas terekkel.

Összközműves, tehermentes, azonnal birtokbavehető.

A 314 m²-es telek lehetőséget ad kellemes kert kialakítására is.
A kertben található melléképület jelenleg garázsként funkcionál, és az udvarban is lehetőség van autóval való beállásra.
Az épület alatt egy 35 m2-es pince is található, amelyet a lakásból lehet megközelíteni.

A frekventált lokáció üzleti szempontból is előnyös, a nagy terek, a különbejáratú helyiségek és a könnyű megközelíthetőség ideálisak irodának, rendelőnek vagy más üzleti tevékenységnek is.

Tökéletes választás azok számára, akik egy történelmi hangulatú, karakteres ingatlant szeretnének saját elképzeléseik szerint újragondolni, miközben visszaidézik a nagypolgári stílusra jellemző örök eleganciát és állandóságot.
Ez az ingatlan lehetőséget ad arra, hogy a múlt időtálló értékeit ötvözze a mai kor igényeivel, egyedi otthont vagy vállalkozást teremtsen.

Az ingatlan tulajdon lapi besorolása: kivett lakóház, udvar és gazdasági épület (belterület), tehermentes.

Amennyiben az ingatlan felkeltette érdeklődését, kérem, hívjon bizalommal a megtekintéssel kapcsolatban.

Amiben segíteni tudjuk ingatlanvásárlását:
-ingyenes, bankfüggetlen hitelügyintézés (CSOK és Babaváró is)
-jogi háttér
-földhivatali ügyintézés
-energetikai tanúsítvány elkészítése
-biztosítás
-belsőépítész
-költöztetés
Kovács Gábor

Kovács Gábor

Hívjon bizalommal

+36-70-213-Mutasd!

További hirdetéseim

Ingatlaniroda
GDN Ingatlanhálózat - ViBee

Küldjön üzenetet

Visszahívást kérek

Hasonló ingatlanok