Eladó Ikerház Dunaharaszti - Családi házas övezetében

117 m2Alapterület 4 + 1 Szoba
148 990 000 Ft Ár
393495Azonosító
További adatok

405 m2 Telek

Kertre néző Kilátás

Új Állapot

Tégla Szerkezet

12 m2 Erkély/terasz

Hőszivattyú Fűtés

Dupla komfort Komfort

Saját beálló Parkolás

Tömegközlekedés

Amerikai konyhás

Van Kertkapcsolat

2026 Építés éve

Hitelkalkuláció – a részletekért kattintson valamelyik bank logójára!

Prémium ikerház eladó Dunaharasztin.

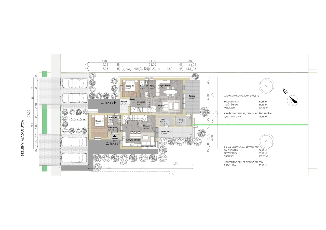
Dunaharaszti egyik legkedveltebb részén, a csendes és rendezett Bezerédi lakóparkban kínálunk megvételre egy prémium minőségben épülő ikerház 1117 m²-es iker lakását 400 m²-es saját kerttel. Az A+ energetikai besorolású otthon modern hőszivattyús rendszerrel, padló, mennyezeti és falfűtéssel készül, amely egész évben kiemelkedő komfortot és alacsony fenntartási költséget biztosít. Az átgondolt tervezésnek, a prémium műszaki tartalomnak és az extra hangszigetelésnek köszönhetően a ház valódi családi ház érzetét nyújtja egy nyugodt, élhető környezetben.

Főbb jellemzők:

- 105 m² lakótér + 12 m² terasz/erkély
- 405 m² saját telekrész
- 4 szoba + nappali
- 2 fürdőszoba + gardrób
- A+ energetikai besorolás
- Hőszivattyús rendszer (padló-, mennyezet- és falfűtés)
- Háromrétegű nyílászárók
- Elektromos redőny előkészítés
- Prémium anyaghasználat

Az ikerház tervezése során külön figyelmet fordítottak az önálló családi ház érzetére:

- Extra hangszigetelés az ikerfalnál
- Külön öntött födémek
- Stabil, vasbeton szerkezet

Az ingatlan egyedi tervezéssel és gondos kivitelezéssel készül. A beruházó számára a minőség és időtállóság elsődleges,

Várható átadás: 2026. július

AMENNYIBEN NEM RENDELKEZIK A TELJES VÉTELÁRRAL, segítünk Önnek megtalálni a legjobb megoldást! BANKFÜGGETLEN hitelcentrumunk minden elérhető bank és hitelintézet ajánlatát versenyezteti az Ön kedvéért, ráadásul díjmentesen. Önnek nincs más dolga, mint elbeszélgetni munkatársunkkal, aki a hallott információk alapján versenyre hívja a bankokat, hogy Ön hosszú távon is a legjobb konstrukciót kaphassa. A legjobb ajánlatokból végül Ön választhatja ki a nyertest. Munkatársaink sokéves szakmai tapasztalattal várják Önt, előre egyeztetve akár a normál munkaidő után is.

További információkért állok rendelkezésére
ZZs.
Kovács Gábor

Kovács Gábor

Hívjon bizalommal

+36-70-213-Mutasd!

További hirdetéseim

Ingatlaniroda
GDN Ingatlanhálózat - ViBee

Küldjön üzenetet

Visszahívást kérek

Hasonló ingatlanok