Kiadó Családi ház Budapest XXII. kerület - Magyar utca

140 m2Alapterület 2 + 3 Szoba
650 000 Ft /Hó Ár
390454Azonosító
További adatok

720 m2 Telek

Panoráma Kilátás

Jó állapotú Állapot

Tégla Szerkezet

34 m2 Erkély/terasz

Gáz (cirkó) Fűtés

Dupla komfort Komfort

Saját garázs Parkolás

Háziállat Igen

Kiváló Tömegközlekedés

Nem Amerikai konyhás

Van Kertkapcsolat

2000 Építés éve

Déli Tájolás

XXII. kerületben, Rózsavölgyben örökpanorámás részén, önálló 2 + 3 szobás családi házat, automata öntözőrendszerrel rendelkező 720 m² telken kínálok kiadásra.

Az ingatlan 2000-ben téglából épült, 3 szintes ( pinceszint + földszint + tetőtérből áll ), dryvit hőszigeteléssel rendelkezik.
Belső tisztasági festés megtörtént, külső homlokzati rész újraszínezése, korlátok átfestése illetve a garázs kifestése legkésőbb 2026. nyár végéig szintén el fog készülni.

Fűtés és melegvíz: ÚJ kondenzációs kombicirkó (2024), (tartalék villanybojlerkkel ).
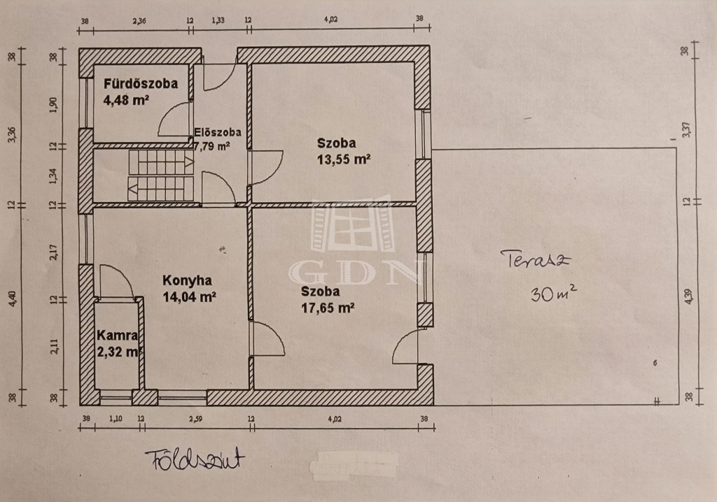
Erkély kb. 4 m² ; Terasz: 30 m².

Méretek és elrendezés az alaprajzokon látható.

A ház nettó hasznos lakóterülete: 140 m²
Pinceszint + 24 m² , GARÁZS + 29 m²
A telken további kocsibeállási lehetőségek is adottak, elektromos kapu illetve garázsajtó, riasztó kiépítve.

Az ingatlan igény esetén IRODÁNAK/CÉGNEK is kiadó.
Bútorozatlanul kiadó minimum 1 évre.
Háziállat tartható, dohányzás a házon belül nem megengedett!

Bérleti díj: 650 e.Ft./hó + rezsi
Kaució: 3 havi díj.
Költözhető: AZONNAL!
Közjegyzői okirat szükséges.

Az ingatlan részletes ismertetése és bemutatása előre egyeztetett időpontban lehetséges, amelyet nagyon rugalmasan kezelünk, akár HÉTVÉGÉN is.
További kérdéseivel kapcsolatban várom a jelentkezését.
Amennyiben Önnek a vásárláshoz szüksége lenne hitelre, babaváró kölcsönre, lakástakarékra, stb., kezdeményezheti a kapcsolatfelvételt bankfüggetlen hitelügyintézőinkkel, teljesen DÍJMENTESEN.
21 év szakmai tapasztalattal rendelkezem, eladó vagy kiadó ingatlana értékesítése vagy bérbeadása esetén, készséggel állok az Ön rendelkezésére is, keressen bizalommal.
Kovács Gábor

Kovács Gábor

Hívjon bizalommal

+36-70-213-Mutasd!

További hirdetéseim

Ingatlaniroda
GDN Ingatlanhálózat - ViBee

Küldjön üzenetet

Visszahívást kérek

Hasonló ingatlanok