Eladó Családi ház Budapest XVI. kerület - Rákosszentmihály frekventált részén

208 m2Alapterület 3 Szoba
174 900 000 Ft Ár
385700Azonosító
További adatok

802 m2 Telek

Utcai Kilátás

Jó állapotú Állapot

Tégla Szerkezet

24 m2 Erkély/terasz

Gáz (cirkó) Fűtés

Saját beálló Parkolás

Kiváló Tömegközlekedés

Nem Amerikai konyhás

Van Kertkapcsolat

2008 Építés éve

Délnyugati Tájolás

Hitelkalkuláció – a részletekért kattintson valamelyik bank logójára!

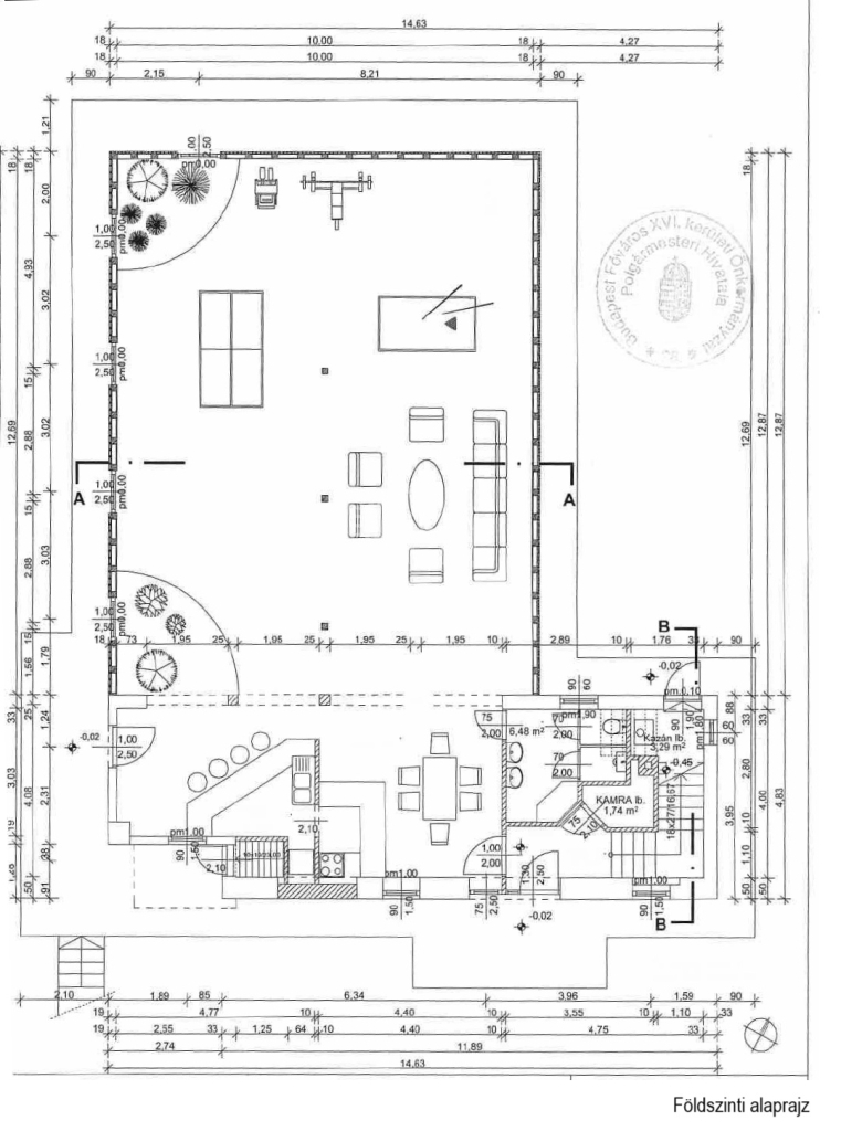
XVI. kerületben, karnyújtásnyira Zuglótól és az Örs vezér terétől, kiváló közlekedés és ellátottság mellett, Rákosszentmihály központi részén, könnyedén akár tehergépkocsival is megközelíthető, kiváló adottságokkal bíró, 802 m2-es saroktelken, 2008-ban, tégla és könnyűszerkezetes falazattal épült, szigetelt, 208 nm-es, 2 szintes, az alsó szinten 5 méteres belmagasságú hatalmas utcafrontra néző ablakokkal rendelkező tágas üzlettér, bemutatóterem és mellékhelyiségek, az emeleti szinten tárgyaló/ iroda, valamint öltöző és vizes blokkal ellátott, napos világos fekvésű, kombinált gázcirkó fűtésű, jó állapotú, számtalan üzleti tevékenységre szabható, klimatizált üzlethelyiség, 8-10 gépkocsi számára alkalmas felszíni beállóval, 5 m2-es pincével, kulturált környezetben eladó.

Az ingatlanban prémium minőségű Hörmann elektromos kapu, bejárati és beltéri ajtók, valamint Kömmerling műanyag/alumínium nyílászárók kerültek beépítésre. A biztonságról távfelügyeletre bekötött kamerarendszer gondoskodik.

A környék ellátottsága és közlekedése egyaránt kiváló.
Az Örs Vezér tér autóval 5 perc, tömegközlekedéssel 10 perc alatt elérhető!
Az M0-ás körgyűrű 10 percre!

Az ingatlan kiemelten jó elhelyezkedése és kialakítása miatt számtalan üzleti tevékenységre alkalmas lehet, mint pl:
Szolgáltató és kereskedelmi egységek, cég központ, raktározás, magán oktatási intézmény, bemutató központ, kisebb magánegészségügyi központ, élelmiszer bolt, műhely….stb
Igény esetén lakóingatlanná minősíthető!

Ezt az ingatlant látni kell!!
További részletes tájékoztatásért és a megtekintéssel kapcsolatban várom megtisztelő hívását.
(hétvégén is)
EA
Kovács Gábor

Kovács Gábor

Hívjon bizalommal

+36-70-213-Mutasd!

További hirdetéseim

Ingatlaniroda
GDN Ingatlanhálózat - ViBee

Küldjön üzenetet

Visszahívást kérek

Hasonló ingatlanok