Eladó Családi ház Gödöllő - Eperjes utca

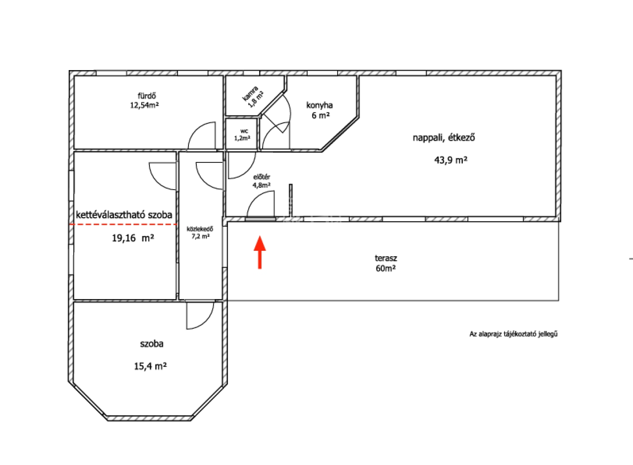
130 m2Alapterület 3 Szoba
113 900 000 Ft Ár
391628Azonosító
További adatok

500 m2 Telek

Udvari Kilátás

Felújított Állapot

Tégla Szerkezet

60 m2 Erkély/terasz

Gáz (cirkó) Fűtés

Összkomfort Komfort

Saját beálló Parkolás

Kiváló Tömegközlekedés

Amerikai konyhás

Van Kertkapcsolat

1995 Építés éve

Hitelkalkuláció – a részletekért kattintson valamelyik bank logójára!

Eladásra kínálok Gödöllő kertvárosi részén egy önálló, felújított (2024.) családi házat.
Felosztása: amerikai konyhás nappali, 2 hálószoba, előtér, nagy méretű fürdőszoba mosdóval, különálló mosdó, spájz.
Mindezt 60 nm fedett terasz szegélyezi.

A házhoz 500 nm saját kert tartozik, az utcafront felől, előkerttel helyezkedik el. Az eredeti nagy méretű telek hátsó részén, egy nyaktaggal csatlakozó (ikresített) másik ház keül megépítésre, amely szintén önálló udvarral fog rendelkezni. és 4 méter széleskocsibejáró a megvételre kínált ház hátljánál fog húzódni, így biztosítva az intimitást.

Falazata 30-as téglából készült, amelyre 5cm dryvit került, az ablakok 3 rétegű favázas thermo üvegesek, elektromos redőnyökkel felszereltek, tetőszerkezete agyag cseréppel fedett, a födém szigetelve van.

Felújítása során prémium minőségű burkolatok, új nyílászárók, víz- és villanyvezetékek (+elosztódoboz) kerültek beépítésre. Az alap- és a szerelőbeton újra lett öntve, az aljzatot pedig 12cm vastag szigeteléssel, hőtükrös fóliával látták el. Falakat újra glettelték, festették és a helyiségek beépített gipszkarton állmennyezetet is kaptak LED világítással.

Fűtés: gázkazán
Melegvíz ellátás: villanybojler 120 l nagyságú.

Extrák:
- kamerarendszer
- riasztó
- 4 db klíma (2*6 és 2*3,5 kw)
- gondozásmentes alumínium kerítés, elektromos kapuval.
- locsolórendszer.

Mind autóval, mind gyalog kivló közlekedéssel bír.
Közelben bolt, iskola, óvoda, parkok, és minden, ami a mindennapi életvitelhez szükséges!

Birtokbavétel rövid határidővel!
Tekintsük meg együtt!
Kovács Gábor

Kovács Gábor

Hívjon bizalommal

+36-70-213-Mutasd!

További hirdetéseim

Ingatlaniroda
GDN Ingatlanhálózat - ViBee

Küldjön üzenetet

Visszahívást kérek

Hasonló ingatlanok