Eladó Családi ház Pécel - Bartoshegy

76 m2Alapterület 1 + 2 Szoba
52 000 000 Ft Ár
346401Azonosító
További adatok

840 m2 Telek

Udvari Kilátás

Új Állapot

Tégla Szerkezet

16 m2 Erkély/terasz

Egyedi kazán Fűtés

Összkomfort Komfort

Saját beálló Parkolás

Gyenge Tömegközlekedés

Amerikai konyhás

Van Kertkapcsolat

2005 Építés éve

Délnyugati Tájolás

Hitelkalkuláció – a részletekért kattintson valamelyik bank logójára!

CSAK NÁLUNK!

76,5 m² családiház, áron alul eladó!


Pécel, Bartoshegy részén eladó egy 840 m² területű, Gksz – Sz/1 övezeti besorolású telek.

A telken van egy családiház mely két lépcsőben épült. Az alap épület 2005-ben épült majd, 2016-ban kibővített. Ekkor kapta meg a jelenlegi formáját.

A ház bruttó 119 m². A hasznos alapterület terasszal 93,14 m², a fűtött alaptarület nettó 76,5 m² 1+2 félszobából áll, ideális kisebb családok számára.

A 16 négyzetméteres fedett terasz tökéletes helyszín reggeli kávézásokhoz vagy esti pihenésekhez, udvari kilátással.

Az épület 2022-ben, belülről teljes körűen fel lett újítva.

A ház falazata tégla + YTONG falazóanyagok. A födém fa, a tetejét cserép fedi.

Az épület NEM rendelkezik használatba vételi engedéllyel!

CSAK KÉSZPÉNZES VÁSÁRLÁS LEHETSÉGES!!!!

A telken 380 V ipari áram és vezetékes víz van.

A ház fűtéséről egyedi kazán gondoskodik radiátoros hőleadással, evvel biztosítva a kellemes hőmérsékletet a hideg hónapokban. A melegvizet ARISTON típusú villany bojler adja.

A nappali hűtéséről, és az alternatív fűtésről klíma gondoskodik.

A külső nyílászárók két rétegű műanyag ablakok.

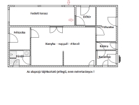
Helységlista:

-fürdőszoba,
-2 db félszoba,
-nappali – konyha – étkező,
-kazánház,
-kamra,
-előtér,
-fedett terasz.


Kereskedelmi, szolgáltató gazdasági területek (Gksz) előírásai:

75. § Az építési övezet területe nem zavaró hatású gazdasági tevékenységet szolgáló építmények
elhelyezésére szolgál.

76. § A kereskedelmi szolgáltató területen elhelyezhető:
a) mindenfajta, nem jelentős zavaró hatású gazdasági tevékenységi célú épület,
b) igazgatási, iroda- és szociális épület,
c) parkolóház, üzemanyagtöltő,
d) sportépület és -építmény,
e) egyéb közösségi szórakoztató épület, lakóterülettől legalább 200 méter távolságra,
f) a gazdasági tevékenységet kiszolgáló szállásjellegű és lakóépület, legfeljebb egy lakással, a tulajdonos illetve a dolgozók számára.

77. § Az épületekben a következő funkciók helyezhetők el:
a) mindenfajta nem jelentős zavaró hatású gazdasági és raktározási funkció,
b) kereskedelmi, szolgáltatási és vendéglátási funkciók,
c) igazgatási, irodai, sportfunkciók,
d) szállás- és lakófunkció.

78. § A lakóterülettel szomszédosan elhelyezkedő üzem saját telkén, a lakóterület felé, minimum 10 méter szélességben kétszintes, és 3 méter széles háromszintes növénytelepítésű zöldsáv alakítandó ki.

79. §60 Az építési övezet telkei legfeljebb 3 méter magas kerítéssel keríthetők le.

80. § A településszerkezeti jelentőségű utak mellett, 50 méter széles teleksávon belül szabadtéri raktározás nem folytatható.

81. § Az építési övezetben megengedett funkciójú épületek, építmények speciális technológiai előírások miatt szükséges egyedi építményeinek, különösen siló, víztorony, kémény magassága nem
lehet több 30 méternél. Egyéb építményekre az építési övezeti előírásoknak megfelelő építménymagasságot kell betartani.

82. § A Gksz-SZ/1 jelű építési övezetben a következő előírásokat kell betartani:

a) a telek szabadonálló módon építhető be,
b) az építési övezetben a legkisebb kialakítandó telek mérete 1000 m2
c) a beépítettség legfeljebb 40 % lehet,
d) a szintterületi mutató a telkeken legfeljebb 2,0 lehet,
e) a telek legalább 25 %-át zöldfelületként kell kialakítani,
f) az épületmagasság legfeljebb 10 méter,
g) az elő-, oldal-, hátsókert mérete 5 méter



Ha egy nyugodt, új otthont keres Pécelen, ezt a családi házat érdemes megtekintenie.


JÖJJÖN EL, NÉZZE MEG TEGYEN AJÁNLATOT!

A GDN HitelCentrum, KÖTELEZETTSÉG MENTESEN és DÍJMENTESEN, versenyezteti Önért a bankok hitelajánlatait. Ismerje meg a vissza nem térítendő állami támogatásokat!


* Egyedi, bankfiókban nem elérhető kamat- és díjkedvezmények.
* Ingyenes Hitelképesség vizsgálat.
* Idő, energia és pénz megtakarítás.
* Teljes hivatali ügyintézés.
* Babaváró.
* CSOK+
* Hitel.
* Megtakarítás,
* és EGYÉB BANKI tranzakcióban segítségére lehetünk!

• Igény esetén, ÜGYVÉDI segítséget nyújtunk, MEGFIZETHETŐ áron!


Ha az ingatlannal kapcsolatban bővebb felvilágosításra lenne szüksége, hívjon bizalommal, állok rendelkezésére!

Videólink: https://youtu.be/kkrGTLN2Gao

F.M.
Bereznai Beáta

Bereznai Beáta

Hívjon bizalommal

+36-70-409-Mutasd!

További hirdetéseim

Ingatlaniroda
GDN Ingatlanhálózat - ViBee

Küldjön üzenetet

Visszahívást kérek

Hasonló ingatlanok