Eladó Ikerház Gyál - Bartók Béla utca

136 m2Alapterület 4 Szoba
126 990 000 Ft Ár
387444Azonosító
További adatok

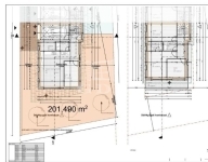
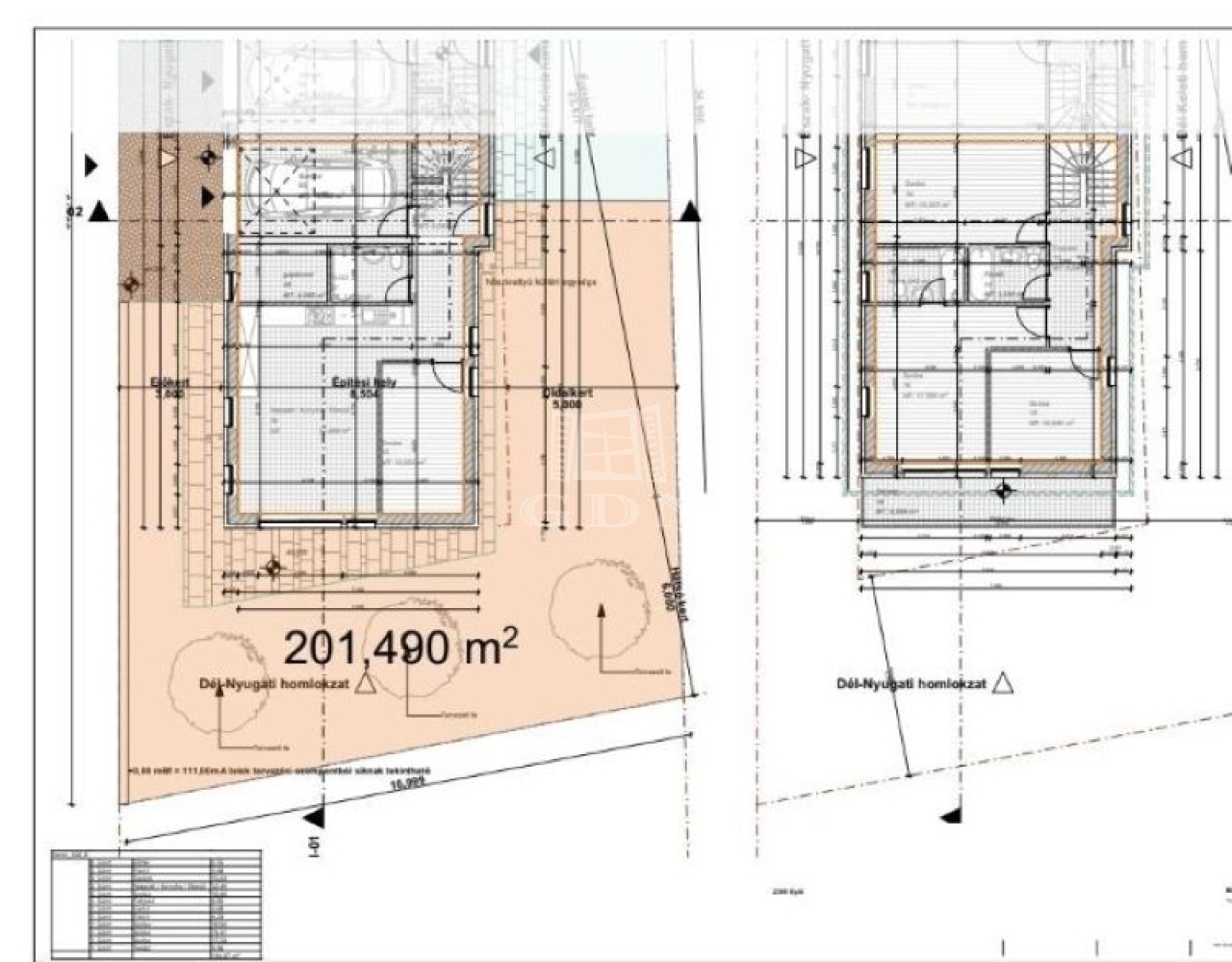
201 m2 Telek

Kertre néző Kilátás

Új Állapot

Tégla Szerkezet

10 m2 Erkély/terasz

Hőszivattyú Fűtés

Dupla komfort Komfort

Saját garázs Parkolás

Tömegközlekedés

Amerikai konyhás

Van Kertkapcsolat

2026 Építés éve

Hitelkalkuláció – a részletekért kattintson valamelyik bank logójára!

Eladó ikerházfél Gyál központi részén!

Gyál rendezett, belterületi környezetében kínálunk megvételre egy 136,87 m²-es ikerházfelet, amelyhez 201 m² saját telekrész tartozik.

A földszinten található a garázs, az előtér, a fürdőszoba, külön WC, a tágas nappali-étkező, valamint egy hálószoba.
Az emeleten folyosóról nyílóan helyezkedik el egy fürdőszoba és három különnyíló szoba, melyek közül az egyikből egy 10 m²-es terasz nyílik.

A ház fűtése modern hőszivattyúval történik, helyiségenként szabályozható padlófűtéssel, így minden szoba kellemes meleget biztosít. A lakás közvetlen összeköttetésben áll a garázzsal, így kényelmesen, a kert érintése nélkül közelíthető meg.

Az épület jelenleg 65%-os készültségi szinten áll, átadás 2026. január 31-én várható. Az elrendezés praktikus és családbarát, többféle élethelyzethez ideális.

A környék infrastruktúrája kiváló: boltok, iskola, óvoda és tömegközlekedés egyaránt könnyen elérhető. Nyugodt lakókörnyezet, mégis központi elhelyezkedés – itt minden adott egy kényelmes, modern otthonhoz.

Finanszírozás és jogi biztonság:
Cégünk minden jelentős hazai bankkal szerződésben áll, így ügyfeleink számára a legkedvezőbb hitel- és finanszírozási megoldásokat tudjuk biztosítani. Tapasztalt ügyvédi háttér gondoskodik a teljes jogi biztonságról és a gördülékeny ügyintézésről.
Kovács Gábor

Kovács Gábor

Hívjon bizalommal

+36-70-213-Mutasd!

További hirdetéseim

Ingatlaniroda
GDN Ingatlanhálózat - ViBee

Küldjön üzenetet

Visszahívást kérek

Hasonló ingatlanok