Eladó Ikerház Kistarcsa - Kistarcsa

150 m2Alapterület 4 + 2 Szoba
139 000 000 Ft Ár
391790Azonosító
További adatok

235 m2 Telek

Utcai Kilátás

Új Állapot

Tégla Szerkezet

4 m2 Erkély/terasz

Hőszivattyú Fűtés

Összkomfort Komfort

Saját garázs Parkolás

Kiváló Tömegközlekedés

Amerikai konyhás

Van Kertkapcsolat

2026 Építés éve

Délkeleti Tájolás

Hitelkalkuláció – a részletekért kattintson valamelyik bank logójára!

Prémium otthon. Saját tér. Hosszú távú döntés.

Van, amikor nem csak házat keres az ember, hanem azt a helyet, ahol jó lesz megérkezni.
Ahol a minőség nem extra, hanem alap.

Ez az új építésű, kulcsrakész ikerházfél pontosan ilyen.

Csendes, családi házas környezetben, aszfaltozott utcában található, mégis minden fontos pár percen belül elérhető – HÉV, bevásárlás, iskola, óvoda.

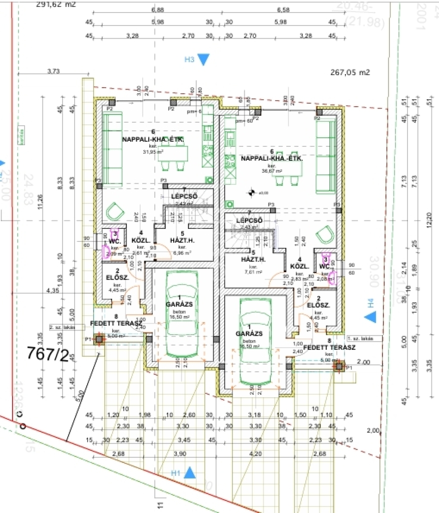
A ház két teljes értékű lakószinttel rendelkezik
(nem tetőtér!), így a terek valóban kényelmesek és jól használhatók.

A nappali, étkező és konyha egy tágas, világos életteret alkot, közvetlen kertkapcsolattal.
Ehhez kapcsolódik több terasz, ahol a reggeli kávé, a nyári vacsorák vagy a csendes esték is helyet kapnak.

Az emeleten 3 hálószoba, gardrób, fürdőszoba és erkélyek biztosítják a privát teret.

A saját telekrész 235 m², emellett garázs és térkövezett autóbeálló is tartozik az ingatlanhoz.

A felszereltség valóban prémium:

– 3 rétegű Schüco nyílászárók
– elektromos alumínium redőnyök
– Bosch hőszivattyú
– padlófűtés az egész házban, még a garázsban is
– 4 klíma
– H tarifa
– okosvezérlés
– kamerarendszer
– elektromos kapu
– LED díszvilágítás
– 15 cm-es homlokzati szigetelés

Itt nem utólag kell fejleszteni – minden adott.

A kulcsrakész átadás 2–3 hónapon belül történik,
mert a belső ajtók, burkolatok, szaniterek és több részlet még a vevő választása alapján készül el.

Ez nem várakozás, hanem lehetőség arra, hogy valóban saját otthon legyen.

CSOK+ és 3%-os hitel is igénybe vehető.

Ez az ingatlan nem kompromisszum, hanem egy hosszú távon is jó döntés – azoknak, akik értéket, kényelmet és nyugalmat keresnek.

Lehet, hogy ez nem csak egy megtekintés lesz, hanem az első lépés az otthonod felé.
Kovács Gábor

Kovács Gábor

Hívjon bizalommal

+36-70-213-Mutasd!

További hirdetéseim

Ingatlaniroda
GDN Ingatlanhálózat - ViBee

Küldjön üzenetet

Visszahívást kérek

Hasonló ingatlanok